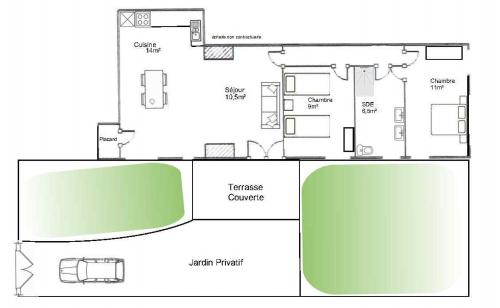
Ubicado a sólo 18 km de Dax Train Station en Cagnotte, A noust tiene hospedaje equipado con terraza, jardín y alberca al aire libre. La casa vacacional de 2 estrellas se encuentra a 16 km de Sainte-Marie Cathedral. La casa vacacional cuenta con 2 habitaciones, televisión, una cocina equipada con refrigerador y horno, una lavadora, y 1 baño con tina o regadera. Gaujacq Castle está a 29 km desde la casa vacacional, mientras que Hossegor Golf Course está a 35 km de distancia. El aeropuerto de Biarritz está a 54 km de distancia.
La distancia en la descripción del alojamiento se calcula con © OpenStreetMap
Comentarios
Categorías:
Elige los temas de los comentarios:

Gestionado por SAS GITES DE FRANCE BEARN PAYS BASQUE LANDES
Información del alojamiento
Idiomas que se hablan
FrancésAlrededores del alojamiento
Reglamento
Políticas de niños
Se pueden alojar niños de cualquier edad.
Para ver la información correcta sobre precios y ocupación, agrega a la búsqueda el número de niños con los que viajas y sus edades.
Políticas de camas adicionales y cunas
En este alojamiento no hay cunas ni camas extra.
Ten en cuenta
The price does not include Heating (additional charge depending on actual consumption)
En este alojamiento no se pueden celebrar despedidas de solteros(as) ni fiestas similares.
Se solicita un depósito contra daños de € 150 al llegar. Se cobrará en efectivo. Se te reembolsará después del check-out. El depósito se reembolsará por completo en efectivo una vez revisado el alojamiento.